Abbey St, Timoleague

Abbey St, Timoleague, Co. Cork, P72 WD39

For Sale

€150000

Guide Price
Terraced House
2
1
570 SqFt
150000

Description

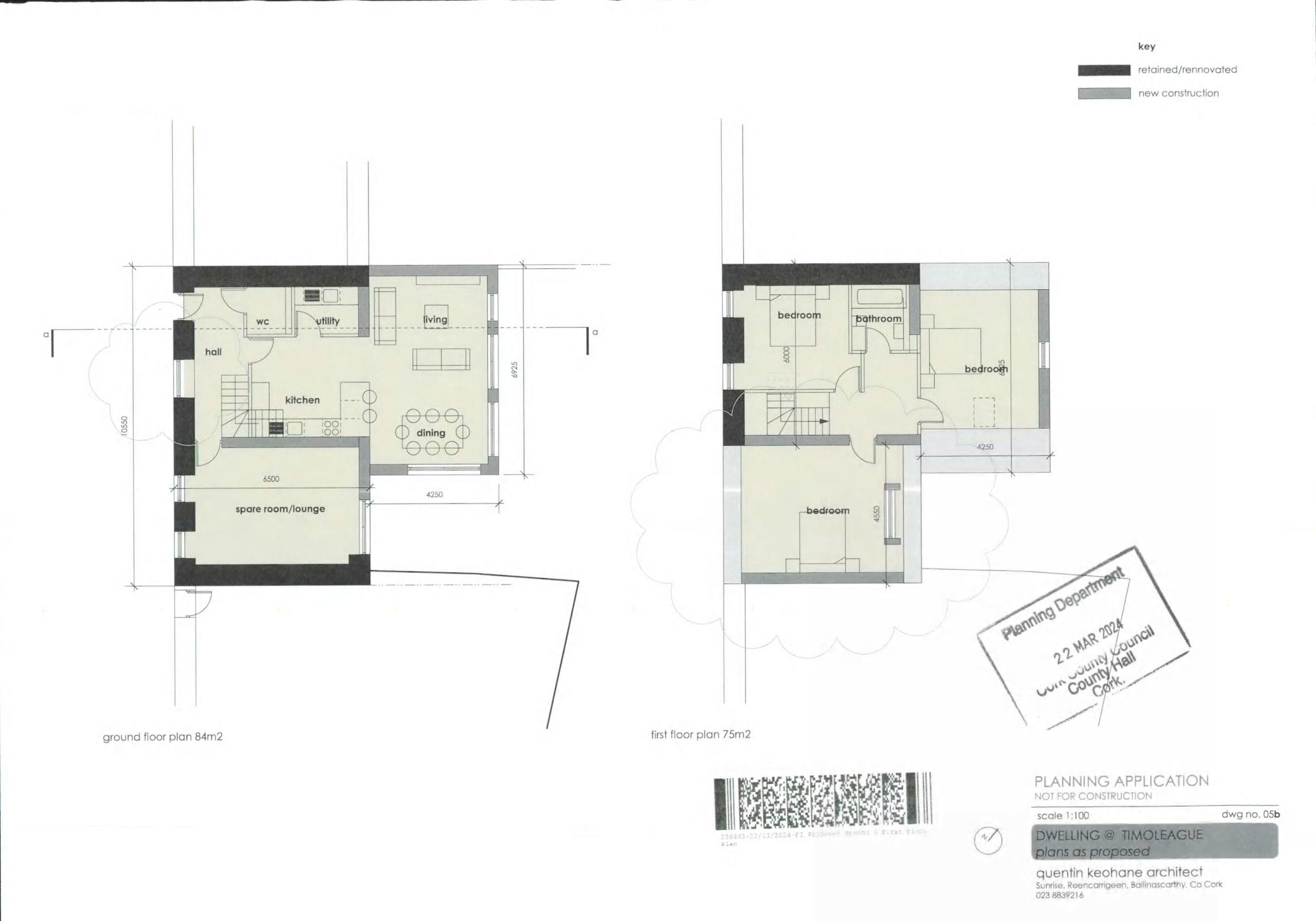
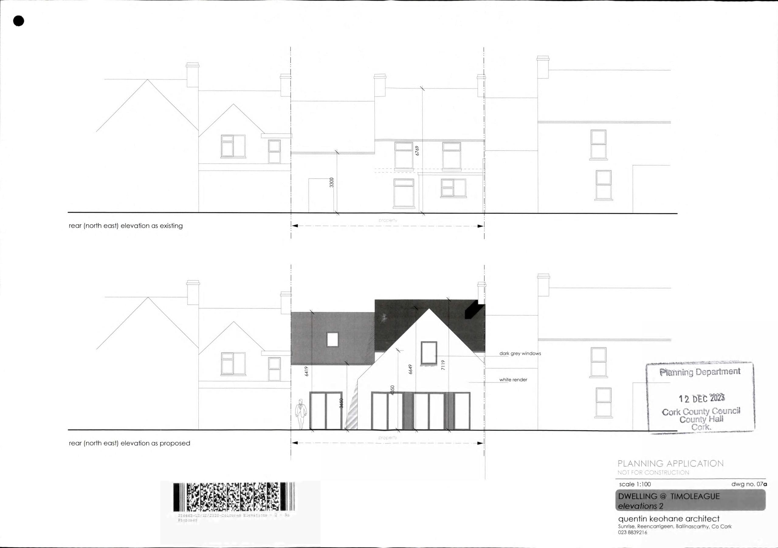
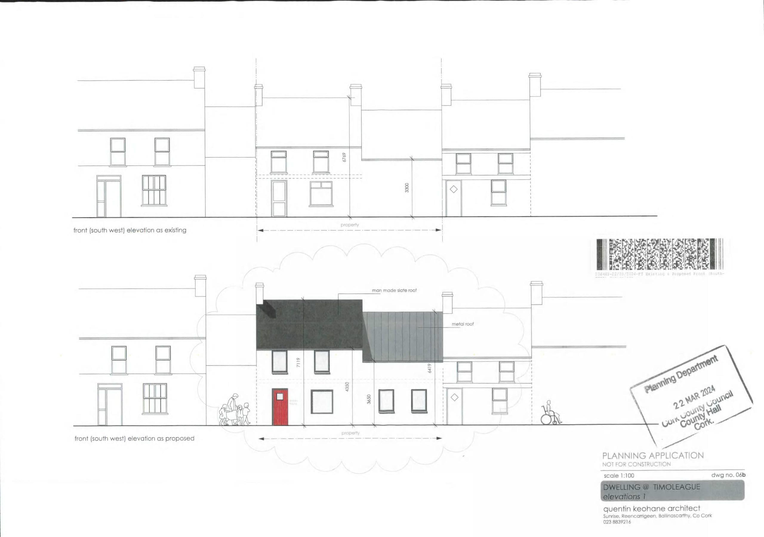
Development Opportunity with Full Planning Permission

This Property is centrally located within the Village of Timoleague.

Currently, the Property comprises of a 2 Bedroom Mid-Terraced Home with storeroom on its Southern gable.

Full Planning Permission has been granted for a Residence extending to c. 1700 Sq.Ft. Modern Dwelling under Planning Reference No. 23/6463.

The Property has the benefit of a large garden providing rear access, which leads to ample on street parking.

This Home will qualify for the Vacant Property Grant (subject to conditions)

Timoleague, is a vibrant and picturesque coastal Village on the Wild Atlantic Way offering a wide range of services including, award winning Restaurants, Supermarket, Filling Station, National School and Churches.

This Property is centrally located within the Village of Timoleague.

Currently, the Property comprises of a 2 Bedroom Mid-Terraced Home with storeroom on its Southern gable.

Full Planning Permission has been granted for a Residence extending to c. 1700 Sq.Ft. Modern Dwelling under Planning Reference No. 23/6463.

The Property has the benefit of a large garden providing rear access, which leads to ample on street parking.

This Home will qualify for the Vacant Property Grant (subject to conditions)

Timoleague, is a vibrant and picturesque coastal Village on the Wild Atlantic Way offering a wide range of services including, award winning Restaurants, Supermarket, Filling Station, National School and Churches.

Disclaimer: All information provided is to the best of our knowledge but is not guaranteed and should be independently verified. No warranties or representations are made regarding the accuracy, completeness, condition or planning status of the property. Interested parties should satisfy themselves as to the correctness of all information provided, including measurements, boundaries, size or acreage, BER details and services. All measurements and distances are approximate and for guidance only. Photographs and video are for illustrative purposes and may include items not included in the sale (e.g. furniture).
Brochure PDF

Keith O’Sullivan

Mobile: 087 4425396
Landline: 023 8833367